練馬区桜台1丁目[中古マンション](「桜台」駅徒歩4分)
駅徒歩4分 3LDK 練馬桜台ガーデンハウス
物件番号:25866
練馬桜台ガーデンハウス
価格:11,500万円(税込)
- 所在地:練馬区桜台1丁目
- 交通1:西武池袋線「桜台」駅徒歩4分
- 交通2:西武有楽町線「新桜台」駅徒歩5分
| 土地面積 | |
|---|---|
| 建物面積 | 81.43m² |
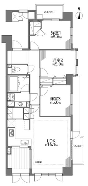
| 間取り | 3LDK |
| 階建て | 地上9階地下1階 |
| 所在階 | 3階 |
内覧希望・詳細を知りたい方は
電話でのお問い合わせ 03-5912-6800
メールでのお問い合わせ
物件周辺環境
- 小学校 | 練馬区立開進第三小学校[詳しい情報]
- 練馬区立開進第三小学校の学区内物件を探す
- 中学校 | 練馬区立開進第三中学校[詳しい情報]
- 練馬区立開進第三中学校の学区内物件を探す
物件詳細情報
| 交通 | 西武池袋線「桜台」駅徒歩4分
西武有楽町線「新桜台」駅徒歩5分 | ||
|---|---|---|---|
| 総戸数 | 46 | 部屋番号 | 307 |
| 小学校区域 | 練馬区立開進第三小学校(644m) | 中学校区域 | 練馬区立開進第三中学校(1000m) |
| 土地権利 | 所有権 | 地目 | |
| 私道負担 | 0m² | セットバック | |
| 接道状況 | |||
| 建物構造 | SRC(鉄骨鉄筋コンクリート造) | 階建て | 地上9階地下1階 |
| 築年月 | 平成14年2月 | 現況 | 空家 |
| 間取詳細 | LDK16.1帖 1部屋 , 洋室5帖 1部屋 , 洋室5帖 1部屋 , 洋室5.6帖 1部屋 | ||
| 駐車場 | 無 | 管理形態 | 全部委託 |
| 管理料 | 19,300円 / 月 | 積立修繕費 | 19,310円 / 月 |
| 都市計画 | 用途地域 | 近隣商業 | |
| 建ぺい率/容積率 | / | その他法制限 | |
| 備考 | |||
| 引渡 | 相談 | 取引態様 | 一般 |
内覧希望・詳細は、プラットホームへ気軽にお問い合わせ下さい
電話でのお問い合わせ
03-5912-6800
練馬区豊玉上2-15-8 プラット桜台ビル
定休日:火曜日・水曜日
メールでのお問い合わせ

















