物件番号:25851(最終更新日:25年11月13日)
練馬区桜台6丁目[売地](「氷川台」駅徒歩5分)
価格:6,799万円
- 交通:東京メトロ有楽町線「氷川台」駅 徒歩5分
最寄り駅徒歩約5分の好立地。建築条件無し。
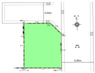
| 土地面積 | 59.35m² |
|---|---|
| 建物面積 | |
| 間取り | |
| 階建て | |
| 所在階 |

| 交通 | 東京メトロ有楽町線「氷川台」駅徒歩5分 | ||
|---|---|---|---|
| 総区画数 | 0 | 区画番号 | |
| 小学校区域 | 練馬区立開進第二小学校(950m) | 中学校区域 | 練馬区立開進第三中学校(700m) |
| 土地権利 | 所有権 | 地目 | 宅地 |
| 私道負担面積 | 9.59m² | セットバック | |
| 接道状況 | 角地 東 公道6m(間口6.7m) 北 私道4m(間口4.9m) | ||
| 建物構造 | 階建て | ||
| 築年月 | 現況 | 更地 | |
| 間取詳細 | |||
| 駐車場 | 管理形態 | ||
| 管理料 | 積立修繕費 | ||
| 都市計画 | 市街化区域 | 用途地域 | 第一種中高層住居専用 |
| 建ぺい率/容積率 | 50%/150% | その他法制限 | 準防火地域、第2種高度地区、日影規制 |
| 備考 | |||
| 引渡 | 相談 | 取引態様 | 仲介 |
- プラットホーム株式会社
- 東京都練馬区豊玉上2-15-8 プラット桜台ビル
- TEL:03-5912-6800 / FAX:03-5912-6801
- 西武池袋線「桜台」駅 徒歩1分
- 営業時間:10:00~19:00
- 定休日:水曜日・隔週火曜日
- ※当社にお車でお越しの際は、
ビル隣が自社駐車場になっておりますので、
お気軽にご利用くださいませ。
